Vente Maison F3 à Faaa

51 240 250 XPF

Overview

  • Mise en ligne :
  • 26/09/2025

La description

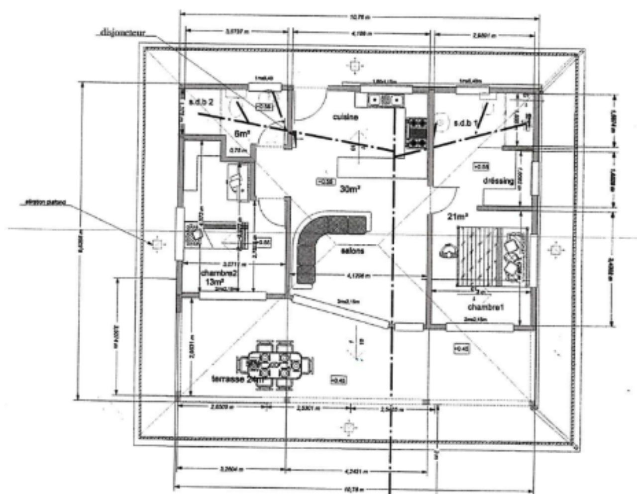
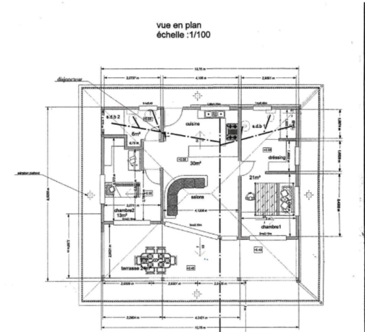
A VENDRE MAISON F3 SAINT HILAIRE

A vendre maison F3 de 100m situé sur les hauteurs de Saint Hilaire à Faa’a avec extérieurs spacieux et vue sur mer.

Maison F3 de 100m2 comprenant :

  • 1 séjour lumineux
  • 1 Cuisine ouverte sur le séjour avec ilot central
  • 2 Chambres dont une chambre parental avec dressing
  • 1 salle d’eau avec toilette
  • 1 Terrasse

Parking pouvant accueillir jusqu’à 3 véhicules

PRIX : 51 240 250 M FAI

📞 Contactez-nous pour organiser une visite.

Pays: Polynésie française
Voir dans Google Maps
ID de l'annonce: 39190
Prix: 51 240 250 XPF

Compare Listings

Soleil Immobilier